loft户型双层

【cx-01】loft公寓,小户型,小复式双层户型专修要略 小空间 大格局-云
图片尺寸850x833
【东营中科创新广场】铂金双钥匙loft公寓 百变"双层记"
图片尺寸500x325
和泓星云谷航天大道旁49米大挑高双层复式loft尽享跃层生活
图片尺寸1198x1057
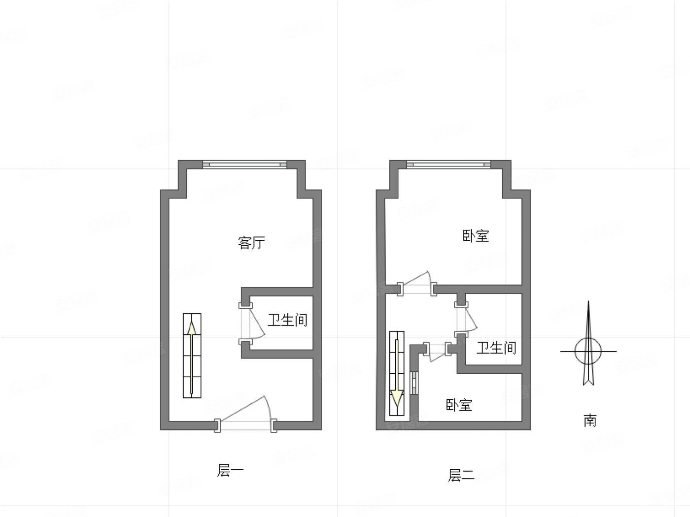
融创loft两层使用空间空中小别墅使用面积多
图片尺寸1400x1050
【cx-01】loft公寓,小户型复式双层,这样智能装饰设计,其实也很美,小
图片尺寸850x695
loft户型
图片尺寸1024x768
4.78m双钥匙loft,天街投资之王问世
图片尺寸553x399
江宁大学城最后的4.8米挑高loft,即将收官!
图片尺寸850x680
现代loft双层公寓
图片尺寸350x350
金杉国际 | 钻石级loft公寓金日耀世加推,7890元/ ㎡起,潮流之选
图片尺寸1080x1375
loft公寓户型图
图片尺寸1072x936
枃
图片尺寸658x574
loft双层公寓生活爱情双丰收
图片尺寸740x478
大理洱海福门loft公寓建面39.75㎡一房户型:二层平面图
图片尺寸550x701
都会公馆:出差全款认购两套loft 20年资深股民教你如何投资
图片尺寸1080x1224
联泰香域尚城 金中环精装修两房 上下双层loft 拎包入住
图片尺寸598x600
润华金地广场百变loft颠覆你想象的双层格局
图片尺寸680x621
黄岩双钥匙loft,单价9000每平,双层公寓,折算成单层不 .
图片尺寸606x607
307m642; 北欧loft双层公寓,一家四口的轻暖日常,简单随性
图片尺寸1060x696
南海大厦居繁华商圈loft公寓享便捷精致生活
图片尺寸1000x1282