pvc预埋套管安装图

图2预埋套管穿墙管防水大样4.2基层要求及处理(1)底材必须坚固,平整.
图片尺寸774x592
这个是不是总水阀,,,第一张图,卫生间顶部pvc管事什么管,楼上的排水管
图片尺寸480x800
一套管预埋
图片尺寸864x493
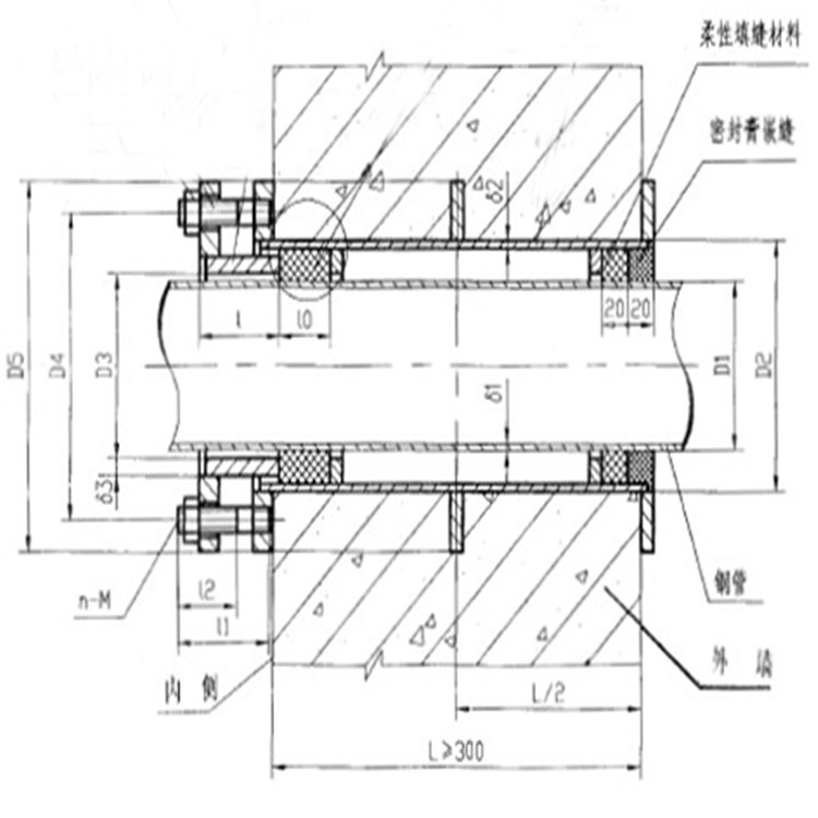
四川hd柔性防水套管使用情况及图纸的解说
图片尺寸800x800
柔性防水套管的浇筑和预埋安装
图片尺寸2000x1448
机电安装工程预留预埋施工工艺_套管
图片尺寸1280x810
电缆等电位连接安装做法计量表或阀门等电位连接给水管,煤气管等通常
图片尺寸708x413
「建筑界」水电预留预埋质量技术交底知识:套管制作与安装
图片尺寸640x591
水暖管道预埋套管施工方法
图片尺寸800x660![[专家答疑]为什么电气预埋刚性防水套管安装后管口两边应伸出墙,梁](https://i.ecywang.com/upload/1/img2.baidu.com/it/u=3653656731,1142753231&fm=253&fmt=auto&app=138&f=JPEG?w=374&h=276)
[专家答疑]为什么电气预埋刚性防水套管安装后管口两边应伸出墙,梁
图片尺寸374x276
关于预埋防水套管图集的详细解说
图片尺寸459x464
卫生间pvc-u水套管细部做法.doc
图片尺寸1120x792
预埋同层排水施工方案示意图
图片尺寸1002x874
柔性防水套管建筑工程直供预埋穿墙人防密闭套管刚性柔性防水套管国标
图片尺寸864x482
为什么预埋刚性套管安装后应管口与墙,梁,柱完成面相平?
图片尺寸457x330
02s404柔性防水套管
图片尺寸824x680
pvc线管一次预埋施工工艺ppt18页(图文并茂)
图片尺寸560x340
供应优质防水套管 穿墙预埋柔性防水穿墙管 图集标准刚性管
图片尺寸750x750
预埋套管穿墙面防水处理
图片尺寸760x513
预埋套管防水套管刚性防水套管钢制楼层预埋防水套管人防套管 dn100*
图片尺寸800x800