u型玻璃如何安装

10分钟带你全面了解钢化u型玻璃
图片尺寸972x1050
10分钟带你全面了解钢化u型玻璃
图片尺寸4000x2068
u型玻璃安装演示
图片尺寸1280x720
技术支持 u型玻璃安装平面非喷砂单层衬画安装 在u玻景墙上
图片尺寸606x499
u型玻璃夹绢安装
图片尺寸1503x650
u型玻璃的形式与安装附视频讲解
图片尺寸605x375
干货u型玻璃结构应用与设计非常值得收藏
图片尺寸1522x821
u型玻璃的安装方式方法
图片尺寸640x249
u型玻璃内隔断非承重墙施工操作要点docx4页
图片尺寸792x1120
热弯u型玻璃 幕墙玻璃钢化玻璃
图片尺寸750x562
干货u型玻璃结构应用与设计非常值得收藏
图片尺寸1229x711
u型玻璃案例系统cad安装大样灯光设计大样图辅材实物照片
图片尺寸640x747
装饰玻璃怎么安装 4种构造做法解析一次讲透
图片尺寸600x375
阿普尔顿u型玻璃水平安装节点图
图片尺寸1954x3226
8米2000平u型玻璃项目
图片尺寸800x1422
0厚度.框,扇均采用压铸角码注胶,5 25a 5信义原片汽车级钢化玻璃
图片尺寸1080x1439
湖北荆门世茂售楼部营销中心u型玻璃项目
图片尺寸800x600
u型玻璃安装示意如何设计施工请看这里
图片尺寸999x714
干货u型玻璃结构应用与设计非常值得收藏
图片尺寸1098x909
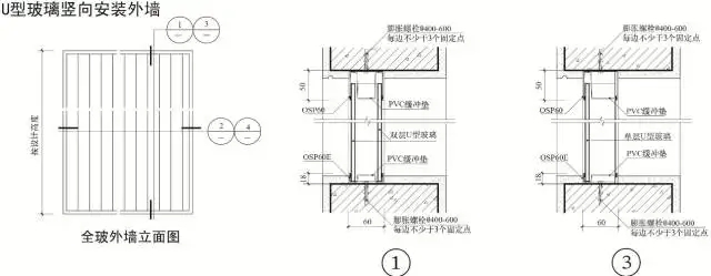
u型玻璃幕墙隔断节点详图
图片尺寸395x560