z156次车15车厢座位图

z36次列车15车座位表
图片尺寸426x552
z273 16车厢座位分布图
图片尺寸440x544
z150次列车(z150次列车3车厢座位分布图)
图片尺寸1728x1080
z151列车14车内设多少座位
图片尺寸195x501
新盘盘点,快戳!咨询电话-价格
图片尺寸887x721
xxz.gov.
图片尺寸2178x9358
中国铁路 #全国铁路将实行新的列车运行图 #交通强国
图片尺寸1440x1687
z126次列车加强春运防火安全
图片尺寸1280x960
《日·键圈时刻表》keyverse infi100将开启不定时补货可以关注一下
图片尺寸812x1114
端午3天|又见61徽杭古道|火车提前15天买票の中国十大徒步线路之二
图片尺寸800x960
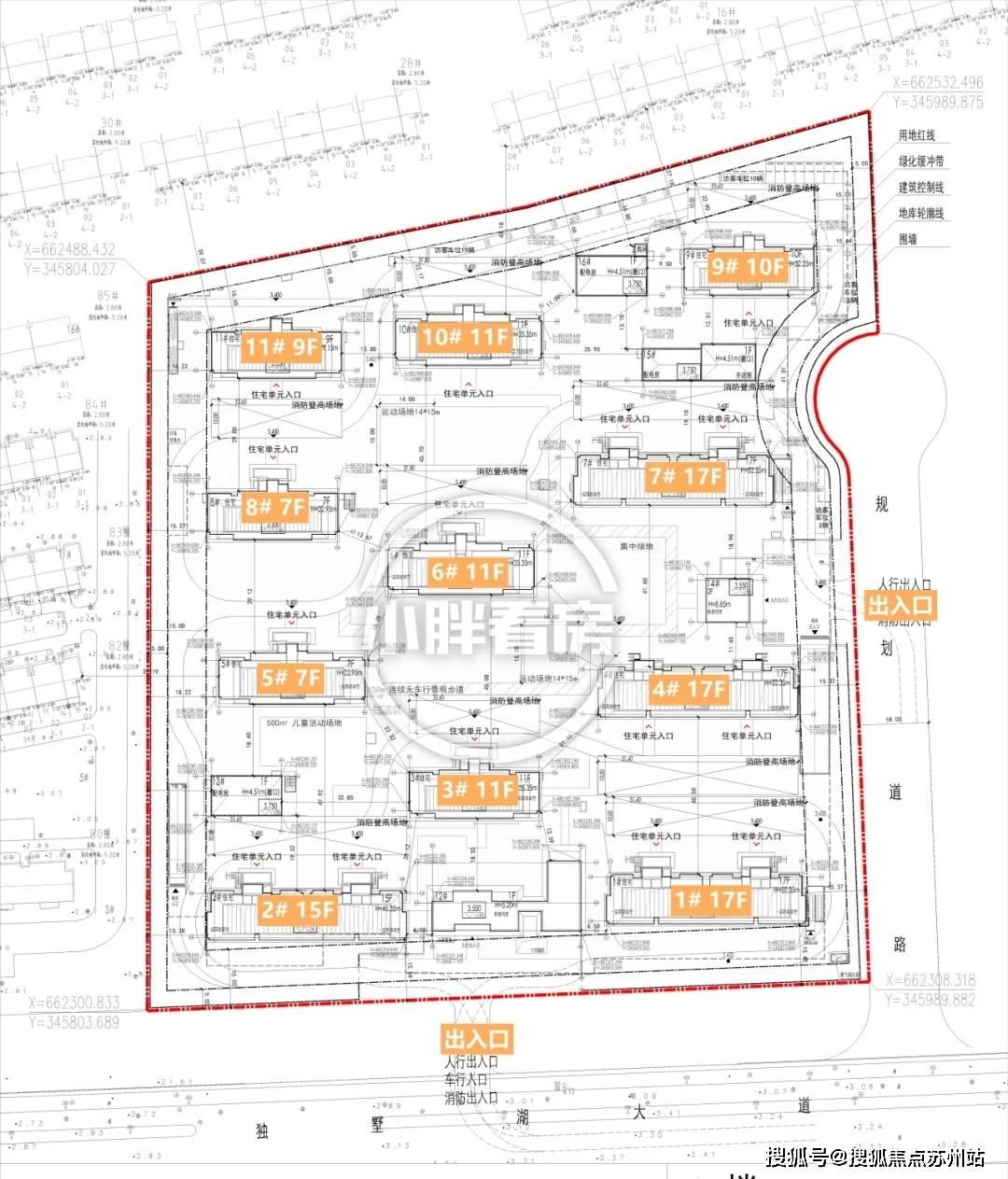
为建筑面积约152-22平,分为四种:建筑面积约152平建筑面积约156平建筑
图片尺寸1080x1263
z150列车15号车厢030号靠窗么?
图片尺寸252x260
z37/8次王牌·全路配置顶级软卧 武汉铁路局的王牌绿皮车,已经持续10
图片尺寸960x1280
z356(z356次列车座位图)
图片尺寸960x640
z287火车有多少车厢『z285次列车17车厢分布图』
图片尺寸986x685
cr400af-z型复兴号智能动车组车厢内部
图片尺寸639x427
兴证期货-铜月度报告:宏观基本面共振,铜价高位震荡
图片尺寸1072x720
of)基金净值-估值-行情走势-手机东方财富 财经门户
图片尺寸500x443
南广场公交线路北广场公交线路当临客列车集中到达或到达人数相对较多
图片尺寸660x454
首班使用1886的z156过柳村线路所
图片尺寸1066x666